Bath Roof Terrace Apartment logo
Holiday apartment Bath

The Royal Crescent

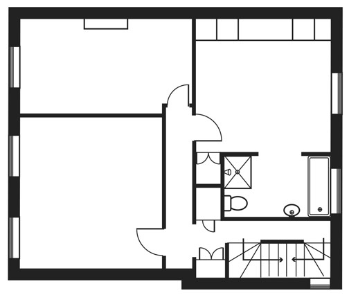
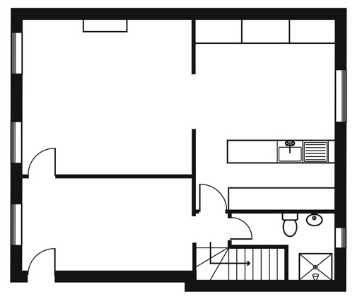
The apartment layout


This 3 bedroom holiday apartment occupies the third and fourth floors of a 17th Century Georgian building, with the roof terrace above. If you have mobility restrictions, please bear that in mind. The entrance staircase is grand and wide and shared only by one neighbour and a small office, so buggies or other heavy items can be left securely in the entrance hall if preferred.

Plan - First Floor

Plan - Second Floor

Plan - Roof Terrace

Lounge

Diner

Kitchen

Study/reception

Up

Bedroom

Bedroom

Bedroom

Up to roof

Down

The Bath Roof Terrace Apartment  •  Telephone 07974 100626 • Email brett@ccsltd.org